
报名成功!
稍后客服会联系您,请保持电话畅通!
OK

桃源小镇
实景图
效果图
平面布置图
本案特点
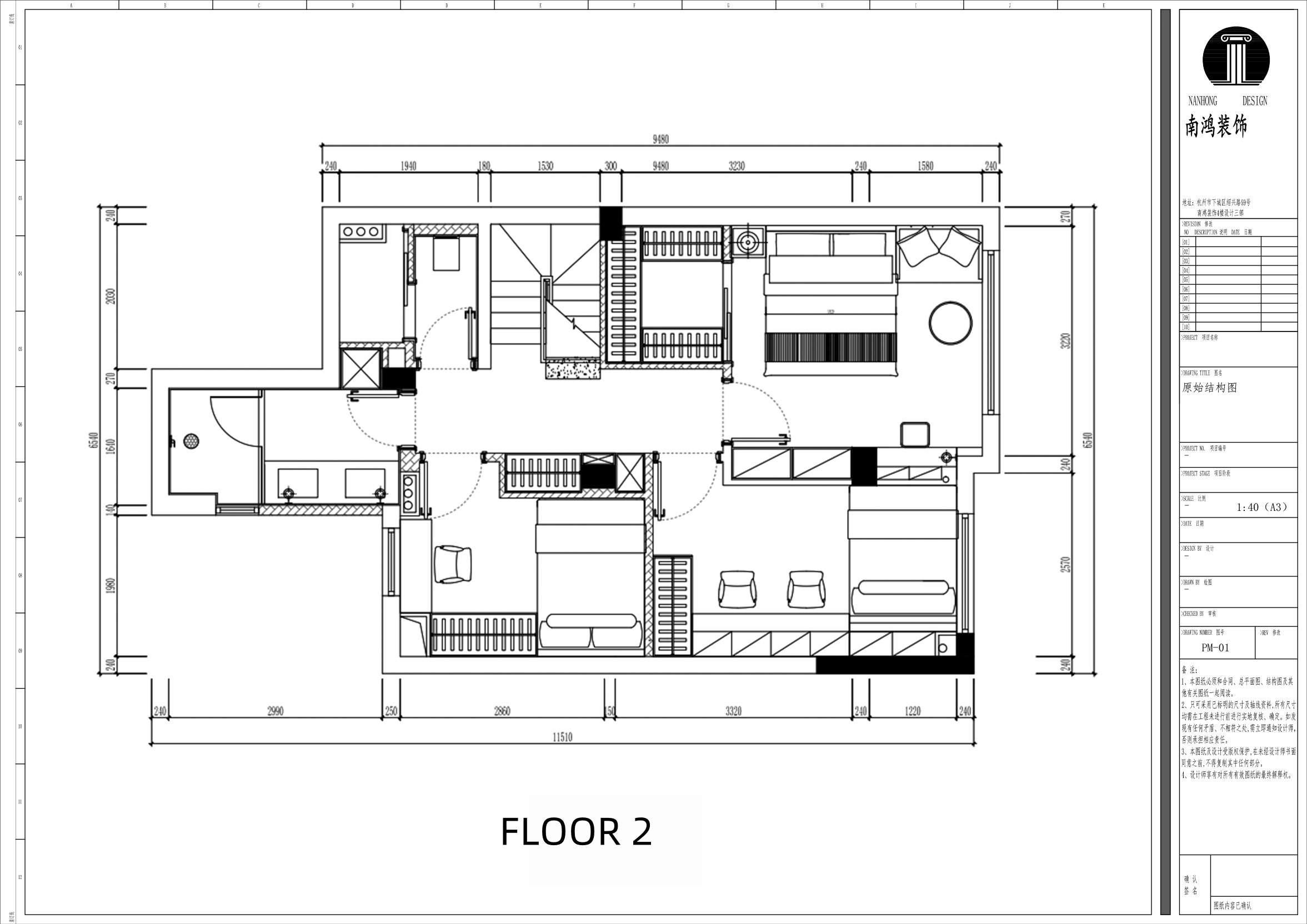
原始平面图
案例展示
玄关 |
Hallway

入户门厅的地面做了绿色大理石的水刀拼花工艺,天然石材的流动纹理通过精密切割、组合,塑造了极富张力的艺术构图。拱形半门洞设计,以柔和曲线形态完成玄关到室内的过渡,进一步强化了室内外转换的仪式感。
客厅 |
Living Room

居室以温馨的原木色佐配白色,构建出明亮的田园基底,烘托惬意悠闲的度假感。


客厅包容了主人的办公区,并通过整墙书柜与壁炉的搭配,实现阅读、休闲、社交等多重功能,视线在横向维度上同步得到延展。

原木书柜墙与石砌壁炉的材质碰撞,将功能与美学巧妙融合。跳动的炉火为空间持续注入暖意,主人可在此沉浸阅读、高效办公,也能围炉会客、自在交谈,在独处与社交状态之间寻觅到最舒适的平衡点。
餐厅 |
Dining Room


黑胡桃木圆桌以沉稳而优雅的质感锚定餐厅基调,同时搭配藤编、油蜡皮、羊羔绒等混搭的餐椅,在材质碰撞间勾勒出视觉层次。
厨房 |
Kitchen

开放式餐厨区以承重柱为轴心展开了设计,延伸出的岛台既化解了结构限制,又巧妙拓展出备餐区、早餐吧等实用功能。不加阻隔的联通布局让自然光在空间内自由流动,亲友共聚时,烹饪、用餐与声声谈笑皆成一体。
卧室 |
Bedroom

二楼规划为休憩静区,低饱和度着色让卧室自带柔光滤镜。墙面选用淡淡的香芋紫色,搭配简洁硬包背景墙的竖向线条,视觉上悄然拔高空间。
卫生间 |
Bathroom

卫浴空间作为家里高频使用的场景,业主对改造细节也尤为重视。我们采用墙地一体的大板瓷砖铺贴,以美丽石材纹理为视觉表现重心,既放大了空间感,又通过连贯的肌理呈现出精致调性。双镜双台盆极大提升洗漱效率,墙排系统消除卫生死角,帮助维持空间的整洁清爽。
私享定制家装服务 NICE HOME

算一算我家装修需要多少钱

私享定制家装服务 NICE HOME