
报名成功!
稍后客服会联系您,请保持电话畅通!
OK

江南豪园
实景图
效果图
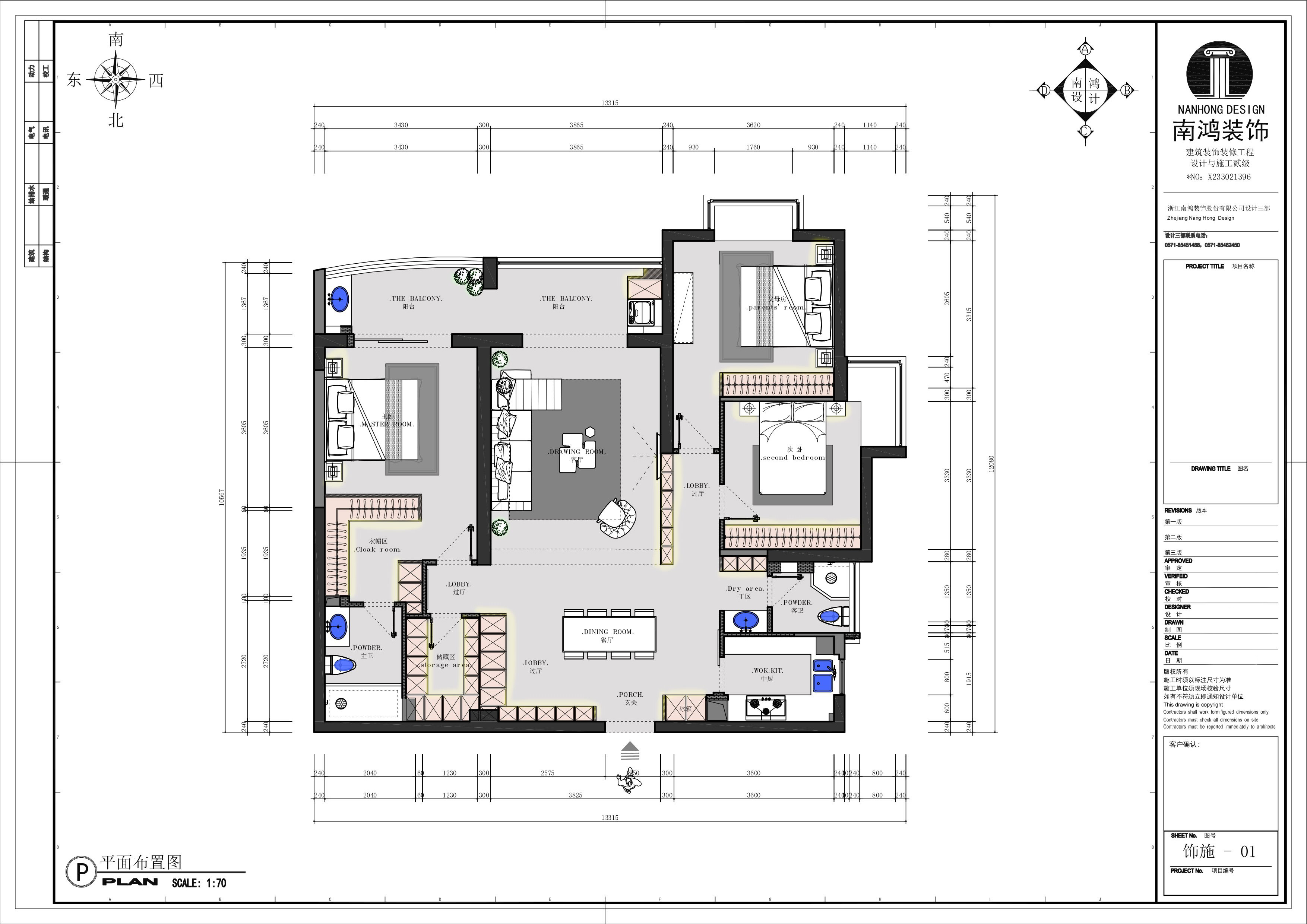
平面布置图
本案特点
原始平面图
案例展示
客厅 |
Living Room




客厅电视背景墙以悬浮矩形姿态呈现,轻盈地塑造出高级感,并与过道进行了趣味的结合,令公区域的通透性得到极大增强。
餐厅 |
Dining Room


客餐之间串联起视线通畅的格局,木白色系调配出和谐感,加之柔和光感的烘托,展现出恰到好处的空间美学。
卧室 |
Bedroom

卫生间 |
Bathroom

私享定制家装服务 NICE HOME

算一算我家装修需要多少钱

私享定制家装服务 NICE HOME