杭州

宁波

400-8800-618

在线咨询

联系我们

400-8800-618

回到顶部

报名成功!

稍后客服会联系您,请保持电话畅通!

OK

柳岸晓风

本案以低饱和度米色为空间基调,搭配温润的原木材质,构建出简约温馨的现代风居室。“少即是多”的设计哲学下,空间既保持了现代主义的干净利落,又通过材质肌理与光影变化,生发出令人安心的治愈能量。

实景图

效果图

平面布置图

本案特点

156方现代风装修,把低饱和度米色和原木材质焊死,简洁又温馨,住进来真的太治愈了。不堆砌复杂装饰,不追求复杂色彩,主打一个简洁大气,却藏着满满的温柔。

全屋以低饱和度米色为基底,墙面、地面、软装统一色调,没有强烈的色彩冲击,却自带高级柔和感。光线好的时候,整个家都变得暖乎乎的,哪怕是阴天,也不会显得冷清,治愈感直接拉满,久坐也不压抑!

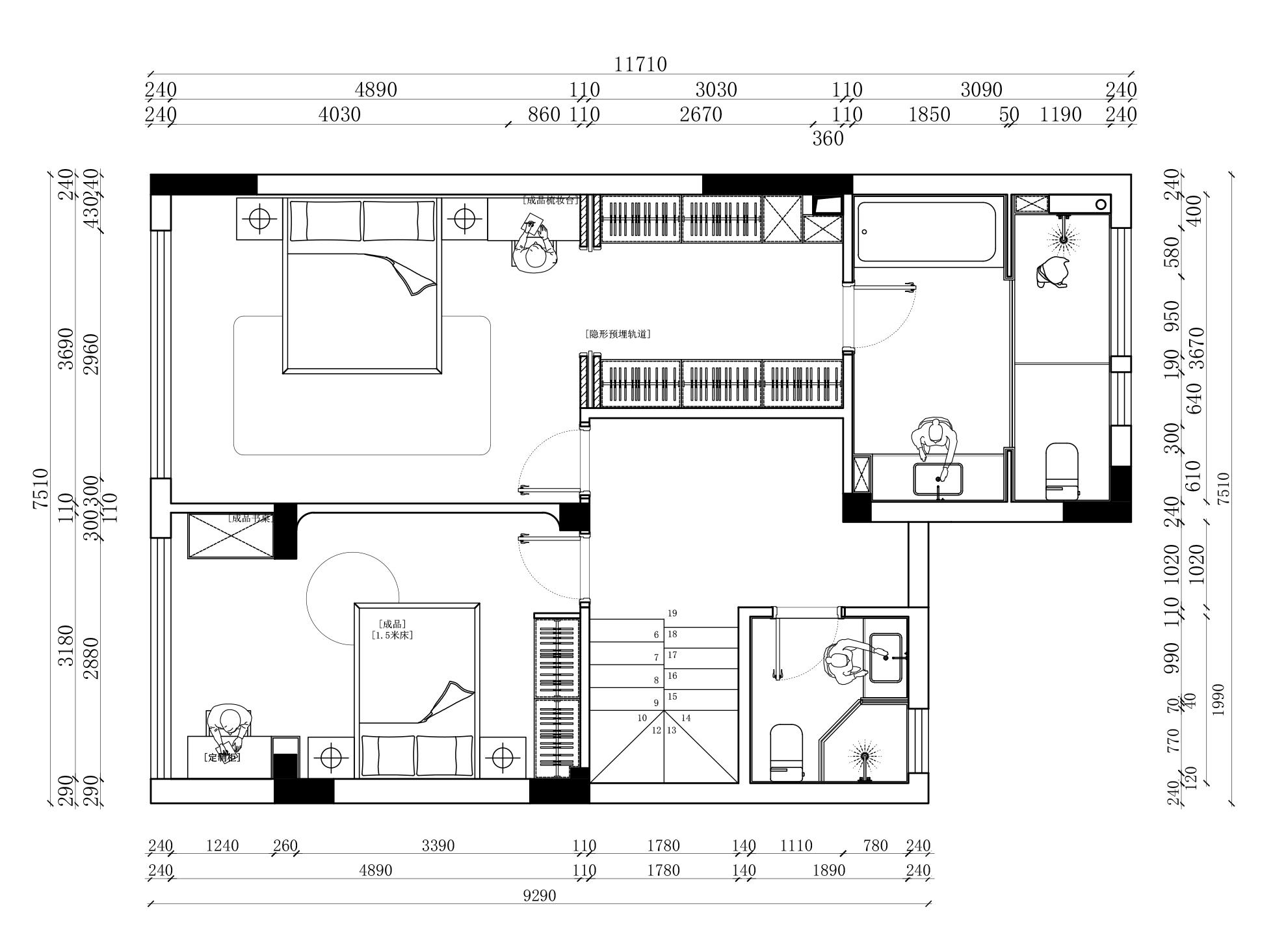
原始平面图

案例展示

客厅 |

Living Room


17758098928F64.jpg


1775809909D373.jpg


177580992717C0.jpg  17758099466266.jpg


客厅做木质电视背景墙储物柜,统一材质保留住视觉的纯粹,又能很好地解决收纳难题。沙发背景通过不同材质组合与几何线的分割,在简约中呈现出现代感的层次。


餐厅 |

Dining Room


1775809965AC61.jpg


1775809982EEE9.jpg


餐厅打造圆顶圆桌的温馨格局,餐边柜以白色天然石材与温润木质的搭配,达成视觉上的温度平衡。


楼梯 |

Stairs


177580999830C5.jpg


卧室 |

Bedroom


177581001571B7.jpg


1775810076605F.jpg


1775810034BC5E.jpg

私享定制家装服务 NICE HOME

家装资讯

【装修设计】 好康的设计都有迹可循,这些百搭元素都要牢牢掌握!

2022-04-02

【家居装饰】 【江南学府】139㎡五居室设计,黑白灰的简净之家,真好看~

2021-12-14

【装修装备】 隔断不一定要整墙,半墙才是真的香啊!

2021-12-08

【家居装饰】 【白荡海人家】137㎡老房爆改,清透解压,一体式布局成亮点!

2021-12-08

【装修验收】 精装房改造要点,总之就是拒绝土气!

2021-12-08

算一算我家装修需要多少钱

私享定制家装服务 NICE HOME