
报名成功!
稍后客服会联系您,请保持电话畅通!
OK

柳岸晓风
实景图
效果图
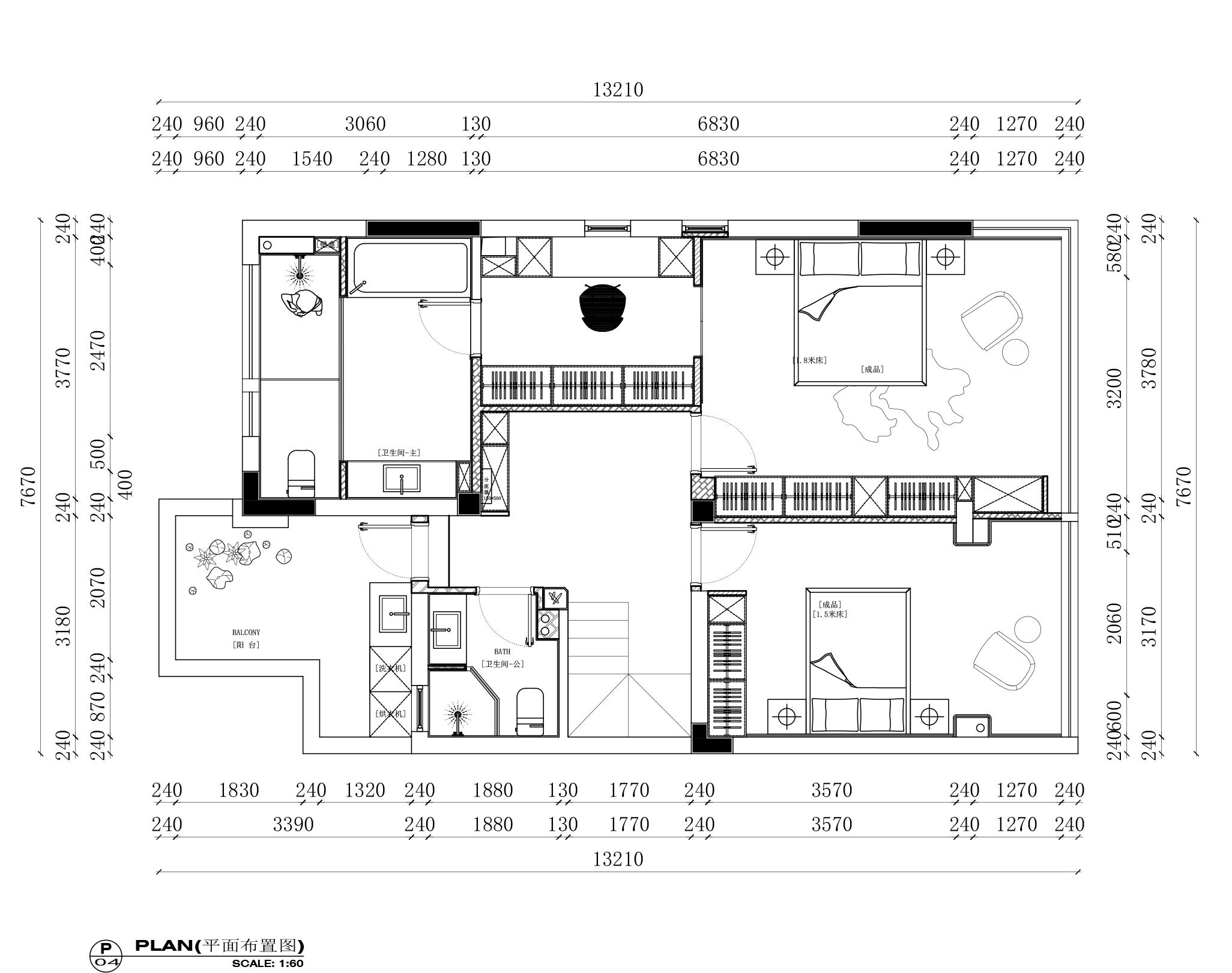
平面布置图
本案特点
原始平面图
案例展示
玄关 |
Hallway


米色系铺陈出入户区的温润基调,通顶储物柜与矮柜共同做嵌入,形成一体化结构。矮柜上方做端景台,底部悬空则为扫地机器人预留了容身之处,空间的实用与美观在此达成微妙平衡。
客厅 |
Living Room

客厅选用奢石材质电视背景墙,如泼墨般恣意流淌的纹理,散发着奢华气质,成为区域的中心亮点。整体浅棕主调沉稳大方,顶面与家具部分加入圆弧线条,形成了柔和的视觉缓冲。无主灯设计漫射出温和的光线,居室通过材质与光影的变化,营造出宁静舒缓的生活氛围。
餐厅 |
Dining Room

餐厅与客厅呈水平的布局,塑造开放通透的公共场域。观景窗将水天一色的自然画卷引入室内,为用餐空间带来更多灵动气息与惬意感受。

深褐色的木饰面以细腻肌理铺陈质感,小巧餐边柜悬浮呈现,配合弧线收边,让腾空的柜体更显轻盈和柔润。
厨房 |
Kitchen

厨房是一个长方形的空间,靠窗窄端做水槽,两侧长端作为备餐区和灶台区,形成符合人体工学的黄金三角动线。再利用高低台设计,将水槽区抬高,弯腰洗菜更省力。

烤箱、冰箱这类大宗电器均做嵌入式设计,搭配极简内嵌式拉手橱柜,让整体立面呈现丝滑流畅的观感。
楼梯 |
Stairs

楼梯不仅是连接上下层的通道,亦是情绪转换的特殊载体。从一楼公共区到二楼私密区,呼吸般的明暗节奏中,心绪也悄无声息地完成了自然过渡。
卧室 |
Bedroom

主卧床头以米色背景搭配两侧棕色木饰面与向上拉伸的线条,表现沉稳的气场,床品、窗帘形成中性色阶过渡,织物天然的肌理质感,构筑出朴实而温和的氛围。

睡卧区一侧设计金属格栅玻璃门,作为功能转换的一个仪式点,巧妙衔接至衣帽间、梳妆台与卫浴区。晨起梳妆、沐浴更衣、夜间休憩,不同生活情景自由切换,三段式动线形成高效的闭环。


次卧通过半墙结构与嵌入式灯线的组合设计,构建出极富现代感的几何美学。灯带与墙体的交错延伸,形成了利落的视觉分割,在强化纵向层次感的同时,营造出虚实相生的光影意境。

床头半墙的深色木饰面延伸至书桌区,形成视觉上的连贯,书桌呈悬挑结构,轻盈有型。
卫生间 |
Bathroom

主卫内里宽敞,采用三分离格局重构空间秩序,依次排开独立马桶间、淋浴间与浴缸。整体深灰色瓷砖通铺墙地面,搭配黑框玻璃门,冷色灯光下,空间流转出高阶的现代质感。
私享定制家装服务 NICE HOME

算一算我家装修需要多少钱

私享定制家装服务 NICE HOME