
报名成功!
稍后客服会联系您,请保持电话畅通!
OK

星央悦府
实景图
效果图
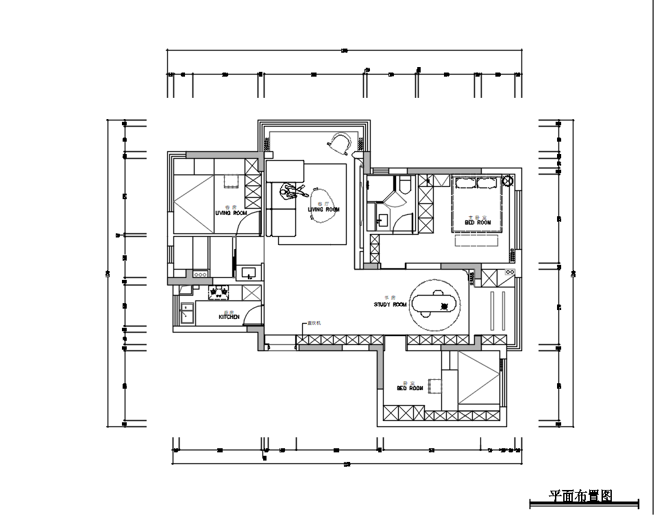
平面布置图
本案特点
原始平面图
案例展示
客厅 |
Living Room



开放式的布局、清浅的色调与柔光砖的通铺,为空间筑下温暖干净的基调。弧线元素从阳台垭口一路到电视背景墙,形成柔和的视觉连贯性。奶油风的软装选品,在光线下折射出细腻的层次。

电视墙接续极简语言,大面积留白做基底,通过弧形曲面、悬浮结构与体块分割的组合,构建出轻盈而优雅的空间表情。



在轻巧中展现层次的现代设计,凸显奶油风特有治愈氛围的同时,大大拉升了整体质感。利用造型本身的流动感与虚实对比,在利落简洁的结构中收获满满的张力。

屋内陈设不多,透过周到、精致的细节赋予空间以质感。奶油风的魅力,恰是在于用最温柔的语言,打造出治愈又高效的生活场景。
书房 |
Study

书房靠近阳台,宽敞明亮,背景墙采用木制搁板与弧形面一体式设计,搭配暖调灯带,勾勒立体线条感与材质的温润肌理。午后的阳光溜进来,悠闲喝一杯下午茶看一看书,感受幸福自在的气息。
主卧 |
Master Room


主卧背景墙以半墙木饰面加灯线造型,为空间注入恰到好处的活力。自然光透过落地窗洒入,与室内暖光交织出温和的层次。
儿童房 |
Children's Room

儿童房做了十分高效的整合型空间设计,榻榻米+衣柜+转角书桌+吊柜,环抱式的布局既保证功能完备,又为孩子留出了宽敞舒适的学习和活动空间。
卫生间 |
Bathroom

公卫打造干湿分离设计,平拱形门洞延伸出弧形半墙,融塑一体,视线柔和顺畅,长虹玻璃隔门令光线在干湿区自由流动,既轻盈划分功能,又维持了空间的呼吸感。

镜柜+台盆柜能让洗漱区始终保持清爽,整体材质的选择兼顾了防滑与耐污性,让美感与实用无缝衔接。
私享定制家装服务 NICE HOME

算一算我家装修需要多少钱

私享定制家装服务 NICE HOME